Oportunidade Única: 19 Lotes à Venda em Trindade – GO
Estão disponíveis 19 lotes prontos para construir, localizados em uma das regiões que mais se desenvolvem em Trindade – GO. Com fácil acesso pela Rodovia dos Romeiros, esses terrenos fazem parte do Loteamento Núcleo Urbano Anhanguera, um bairro em crescimento e com excelente potencial de valorização.
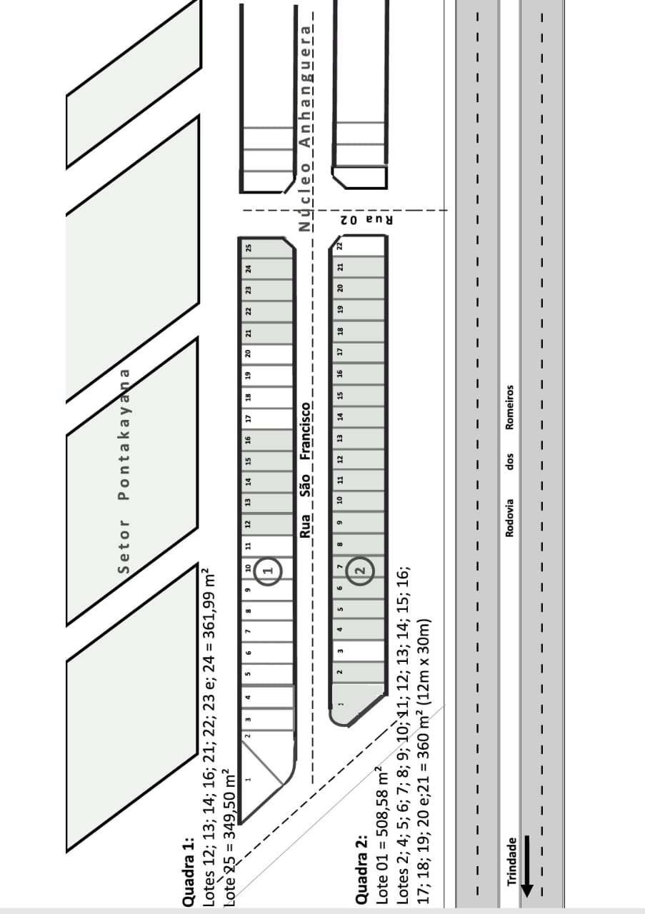
Detalhes dos Lotes:
Área individual: 361,99 m²
Dimensões: 12,25 m (frente) x 29,55 m (lateral)
Ideal Para:
Moradia própria em local estratégico
Construção de imóveis residenciais ou comerciais
Investidores e construtoras que buscam valorização a médio e longo prazo
Destaques da Localização:
Acesso rápido à Goiânia
Localizado na Rodovia dos Romeiros, principal via de Trindade
Região em plena expansão urbana
Bairro tranquilo, com infraestrutura em desenvolvimento
Excelente opção para quem busca qualidade de vida com praticidade
Garanta já seu lote em uma região promissora e aproveite esta oportunidade de investir em um dos mercados que mais crescem na região metropolitana!
Entre em contato agora e agende uma visita!
























































































